$780,000
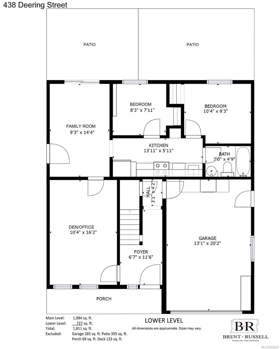
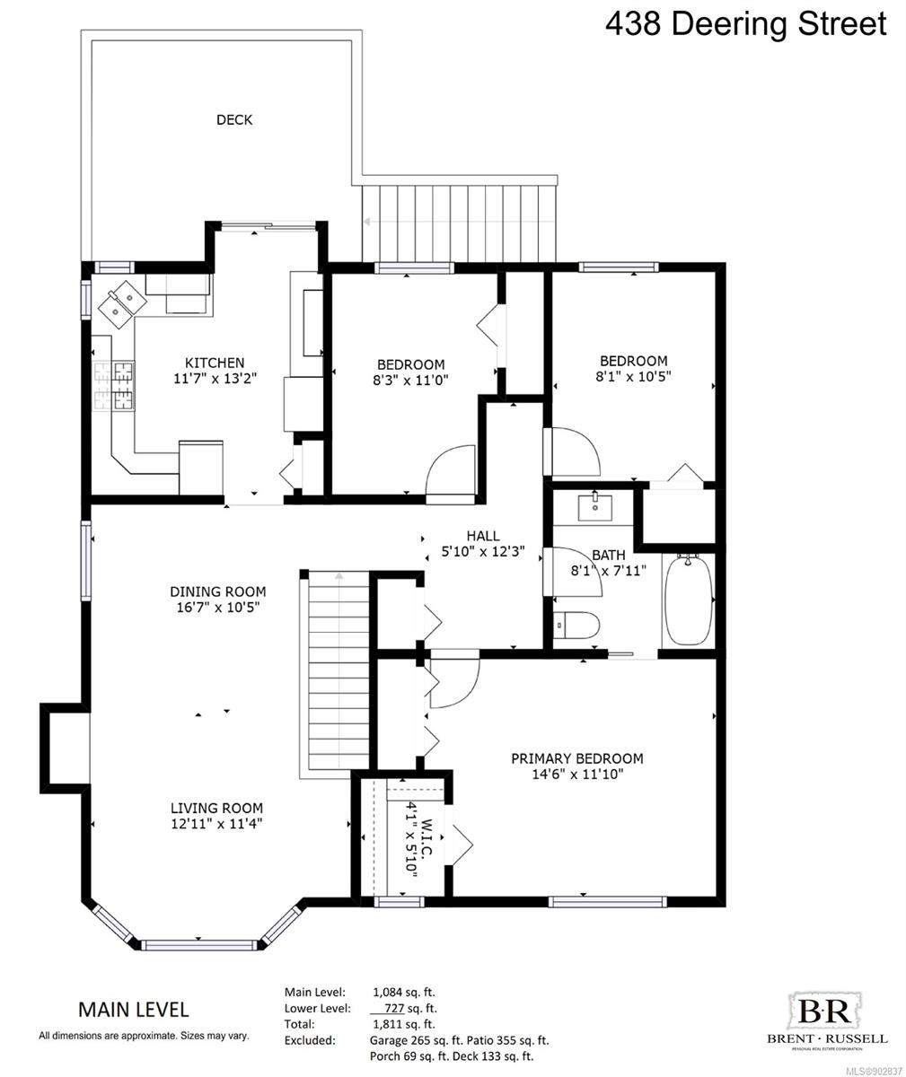
438 Deering Street
Sold
More information
Features & amenities
- Dining/Living Combo
- Central Location
- Family-Oriented Neighbourhood
- Landscaped
- Level
- Quiet Area
- Rectangular Lot
- Shopping Nearby
Additional details
- MLS® # 902837
- Date Sold July 2022
- Type Residential
- Subtype Single Family Detached
Listing is presented by
Vancouver Island Properties
Re/Max Professionals